鸿鹄CAD --- 轻松绘制门构件
在前两期的教程中,我们学习了如何绘制图框、轴网和轴号。本期我们将进一步深入,使用鸿鹄CAD完成建筑图纸中的另一核心内容------门构件的绘制。鸿鹄CAD安装包不到40M,支持中文命令和智能模糊匹配,实时渲染,高效易用!
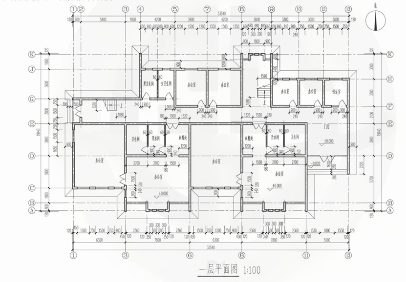
- 我们继续绘制"一层平面图"。在绘制门构件前,需要使用【图层管理】功能锁定轴网图层,确保轴网不被更改。新建"门窗"和"0辅助线"图层,参数如图所示,一般门窗构件使用绿色细线绘制。


- 先将图层切换为"0"辅助线图层,然后使用【L直线】命令沿轴网绘制一条辅助线。接着使用【O偏移】命令快速绘制辅助线用于定位门的位置(距墙尺寸是240,门宽900),绘制时需注意勾选"保留源对象",偏移距离按图示缩小100倍。


选中墙线,使用【TR修剪】功能中的"自动修剪"将门构件位置的墙修剪掉。鸿鹄CAD的自动修剪功能会智能识别两根辅助线中间的墙线部分并精准修剪掉,画图效率更高。

- 接下来开始绘制门构件。门由一条倾斜直线和一段圆弧构成。首先将图层切换为"门窗",使用【L直线】命令绘制倾斜直线,先输入距离9,然后按【TAB】键切换输入角度"45"度。

使用【ARC圆弧】命令,切换画法【M】为"圆心-起点-终点"绘制圆弧。
鸿鹄CAD提供了多种圆弧绘制方式,覆盖了各种画图情况下的弧线绘制需求,不论是否知道圆心半径都能轻松画弧。

- 使用鸿鹄CAD的【B】(创建块)命令命名并保存成块,便于复制门构件时确保复制时组件的完整性和便利性。

然后选择模块"门900",使用镜像【MI】绘制对称轴后快速绘制另一侧的门。

- 所有门构件绘制完毕后,使用【快速选择】功能一键选中"0辅助线"图层中的所有辅助线,然后使用【E删除】命令将多余的辅助线删除。


- 最后,如果有个别门窗是不同尺寸,可以使用【X】或中文【打散】(均为分解命令)彻底解组门图块。鸿鹄CAD的分解功能支持"一键打散到底",非常适合多层组块的图形,无需重复操作即可一键彻底打散成独立线段。
鸿鹄CAD 以其轻量化设计、中文命令支持和流畅的操作体验,使绘制门窗这类基础而重要的操作变得简单直观。无论是CAD初学者还是日常绘图者,都能轻松上手,高效完成图纸绘制。
#鸿鹄CAD#门构件#制图#CAD制图#CAD画图#CAD教程