摘 要
汽车后桥壳体作为汽车驱动系统的重要组成部分,其加工工艺的精度直接影响整车的性能和可靠性。后桥壳体通常由铸铁或铝合金材料制成,具有复杂的几何形状和较高的强度要求。在加工过程中,常见的工艺包括车削、铣削、钻孔、磨削等。首先,对后桥壳体的粗加工和精加工进行细致分工,粗加工阶段通常采用大型数控车床进行外形切削,而精加工阶段则需要精密数控铣床和磨床进行细节修整,以确保尺寸精度和表面质量。此外,由于后桥壳体的厚壁结构和内部孔位的复杂性,切削过程中容易出现变形和应力集中,因此合理的工艺参数选择和工件夹持方式显得尤为重要。
夹具设计是后桥壳体加工中至关重要的一环。为了提高加工精度和生产效率,夹具需要具有良好的定位和夹紧功能。根据后桥壳体的结构特点,设计合适的多点夹紧系统,使工件在加工过程中稳定不变形,避免产生加工误差。通常,采用三维可调的夹具设计,结合精密的定位销和固定装置,有效提高了加工过程中的工件固定性和定位精度。此外,夹具设计还应考虑到加工流程的顺畅性和自动化程度,通过设计灵活的夹具装置,不仅能够减少操作时间,还能够实现批量生产中的高效换夹。综合考虑后桥壳体的加工难度和夹具的设计要求,优化加工工艺与夹具方案可以显著提升生产效率和产品质量。
关键词:汽车后壳体;加工工艺;夹具设计;solidworks
目录
1 绪论 1
1.1 选题依据 1
1.2 选题的背景及意义 1
1.3 国内外的发展现状 2
1.4 本次设计主要研究内容 3
2 零件的分析 5
2.1 汽车后壳体零件的作用 5
2.2 汽车后壳体零件的工艺分析 5
2.3 确定生产类型和毛坯制造形式 6
2.4 基准面的选择 6
3 机械加工工艺路线 7
3.1 工艺路线 7
3.2加工余量、毛坯尺寸的确定 7
3.3确定切削用量及时间定额 9
3.3.1 铣平面 9
3.3.2 镗孔 10
3.3.3 钻孔 11
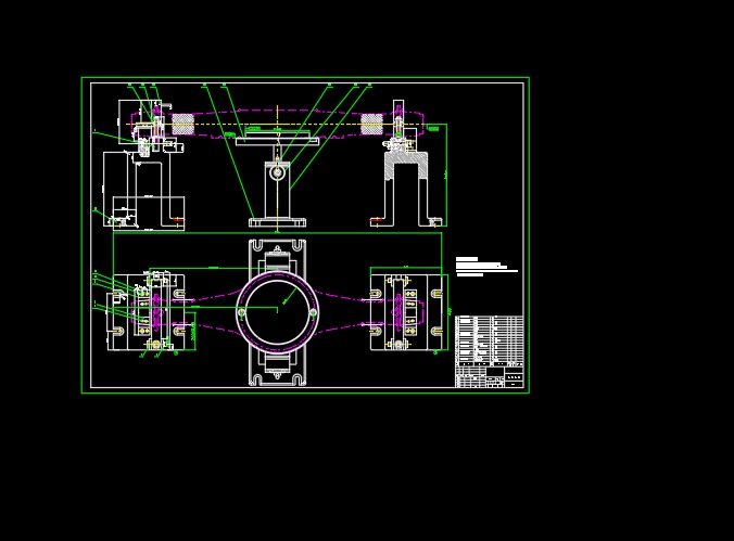
4 汽车后壳体夹具设计 13
4.1 工件的加工工艺分析 13
4.2 夹具的定位 13
4.3 夹具的夹紧 13
4.4 定位误差 15
4.5 夹具设计 15
4.5.1 定位基准的选择 15
4.5.2 夹紧力的确定 15
4.5.3 钻削力的计算 16
4.5.4 设计的夹具体 16
5 总结和展望 18
5.1 总结 18
5.2 展望 18
致谢 20
参考文献 21
1 绪论
1.1 选题依据
在汽车工业中,后桥壳体作为重要的传动部件承载着关键作用。随着汽车行业的快速发展,对后桥壳体的质量、精度和生产效率提出了更高要求。一方面,后桥壳体的结构复杂,其加工精度直接影响汽车的性能和安全性。传统加工工艺可能存在精度不高、效率低下等问题,需要通过深入研究和优化加工工艺来提高产品质量。另一方面,合适的夹具设计能够保证后桥壳体在加工过程中的定位准确、夹紧可靠,提高加工精度和生产效率,降低生产成本。此外,开展汽车后桥壳体加工工艺及夹具设计的研究,有助于提升我国汽车零部件制造水平,增强汽车产业的核心竞争力,为汽车行业的可持续发展提供技术支持。
1.2 选题的背景及意义
随着汽车工业的不断发展,汽车的动力系统和底盘结构逐渐向高效、可靠、轻量化和高性能方向发展。作为汽车底盘系统中的重要组成部分,汽车后桥壳体不仅需要承载车辆的驱动、传动及负荷,还要具备良好的密封性、耐磨性和抗冲击性。因此,后桥壳体的设计和制造质量直接影响到整车的动力性、操控性和安全性。后桥壳体的加工工艺和夹具设计在整个生产过程中占据了至关重要的位置。精确的加工工艺能够确保后桥壳体的几何精度、表面质量及结构强度,而合理的夹具设计则能够在保证加工精度的基础上提高生产效率,降低制造成本。随着后桥壳体复杂度的提升,尤其是在形状复杂、壁厚不均和孔位密集的情况下,传统加工方法面临着巨大的技术挑战。因此,研究适合后桥壳体加工的工艺流程和夹具设计,不仅能提升产品质量,还能为生产过程的自动化与智能化提供理论支持和技术保障。
在全球竞争日益激烈的汽车制造业中,企业对于生产成本和加工效率的要求不断提高,特别是在批量生产中,如何高效、精确地加工后桥壳体成为了一个亟待解决的关键问题。优化后桥壳体的加工工艺,不仅能够提升加工精度和表面质量,减少生产过程中出现的废品率和返工率,还能够有效缩短生产周期,提升企业的市场竞争力。与此同时,夹具设计的优化也是提高加工效率和确保加工精度的关键。良好的夹具设计不仅能够降低人工操作的复杂度,还能减少加工过程中工件的变形和振动,从而保证加工过程的稳定性。通过对后桥壳体加工工艺与夹具设计的深入研究,可以为相关制造企业提供实践指导和技术支持,推动汽车制造业在生产技术和设备方面的创新与发展,为产业的升级和转型提供有力的支撑。
1.3 国内外的发展现状
汽车后桥壳体是汽车驱动系统中的关键部件之一,其加工工艺和夹具设计直接影响着产品的质量和生产效率。国内对于汽车后桥壳体的加工工艺已有较为广泛的研究,特别是在提高加工精度、减少加工时间和提高生产效率方面取得了一些进展。国内学者在后桥壳体的加工工艺方面,主要集中在数控加工技术、精密铸造和激光加工技术等领域。随着数控技术和机器人技术的迅速发展,许多后桥壳体的加工工艺逐渐由传统的手工操作向自动化和智能化方向发展。例如,数控车床、铣床等设备的应用,大大提高了加工精度和生产效率,能够完成复杂的几何形状加工。,在夹具设计方面,国内的研究重点是如何优化夹具的结构,提高夹具的稳定性和加工精度。针对后桥壳体结构复杂、形状不规则的特点,研究者设计了多功能的专用夹具,以适应不同加工工序的需求。通过合理的夹紧方式,能够减少工件的变形,提高加工精度,延长设备的使用寿命。随着国内汽车工业的快速发展,后桥壳体的生产要求也越来越高。如何在保证加工精度的同时,降低生产成本,成为了国内研究的热点。例如,通过优化切削参数、采用先进的刀具材料和涂层技术,国内研究者有效地提高了加工效率和刀具的使用寿命。
国外在汽车后桥壳体加工工艺及夹具设计方面的研究起步较早,技术相对成熟,并在许多领域取得了领先地位。国外学者在精密制造、自动化生产线设计和智能化加工等方面,取得了很多先进成果,并将其应用于实际生产中,提升了汽车后桥壳体的加工精度和生产效率。国外在后桥壳体的加工工艺方面,普遍采用了集成化和智能化的加工方法。例如,德国和日本等国家已经发展出高精度的五轴联动加工技术,能够实现复杂形状的高效加工。特别是在零件的多次精加工过程中,国外采用了自动化程度高、精度稳定的生产系统,进一步提高了生产效率并降低了人工成本。国外在夹具设计方面,注重对夹具功能的多样化与优化。许多国际知名汽车零部件供应商已经开始采用模块化夹具设计,这种设计不仅能够满足不同产品的生产需求,而且具有较高的灵活性和适应性。通过集成式夹具设计,能够在减少夹具成本的同时,保证加工过程的稳定性与精度。国外的研究还深入探讨了材料对加工过程的影响。例如,一些欧美国家在后桥壳体加工中,采用了高性能的复合材料和新型合金材料,研究表明,这些材料能够提高后桥壳体的强度和耐用性,并且具有良好的加工性能。此外,国外也有不少研究关注智能制造和人工智能在后桥壳体加工中的应用,通过数据采集和分析,提高生产过程的智能化水平。
随着汽车产业的不断发展,未来后桥壳体的加工工艺和夹具设计将向着更高效、更精密


